Little Norsey Road, Billericay

Guide Price £750,000 - Under Offer


  • Prime Residential Setting Between Norsey Road And Stock Road
  • Walking Distance to Billericay Station and High Street
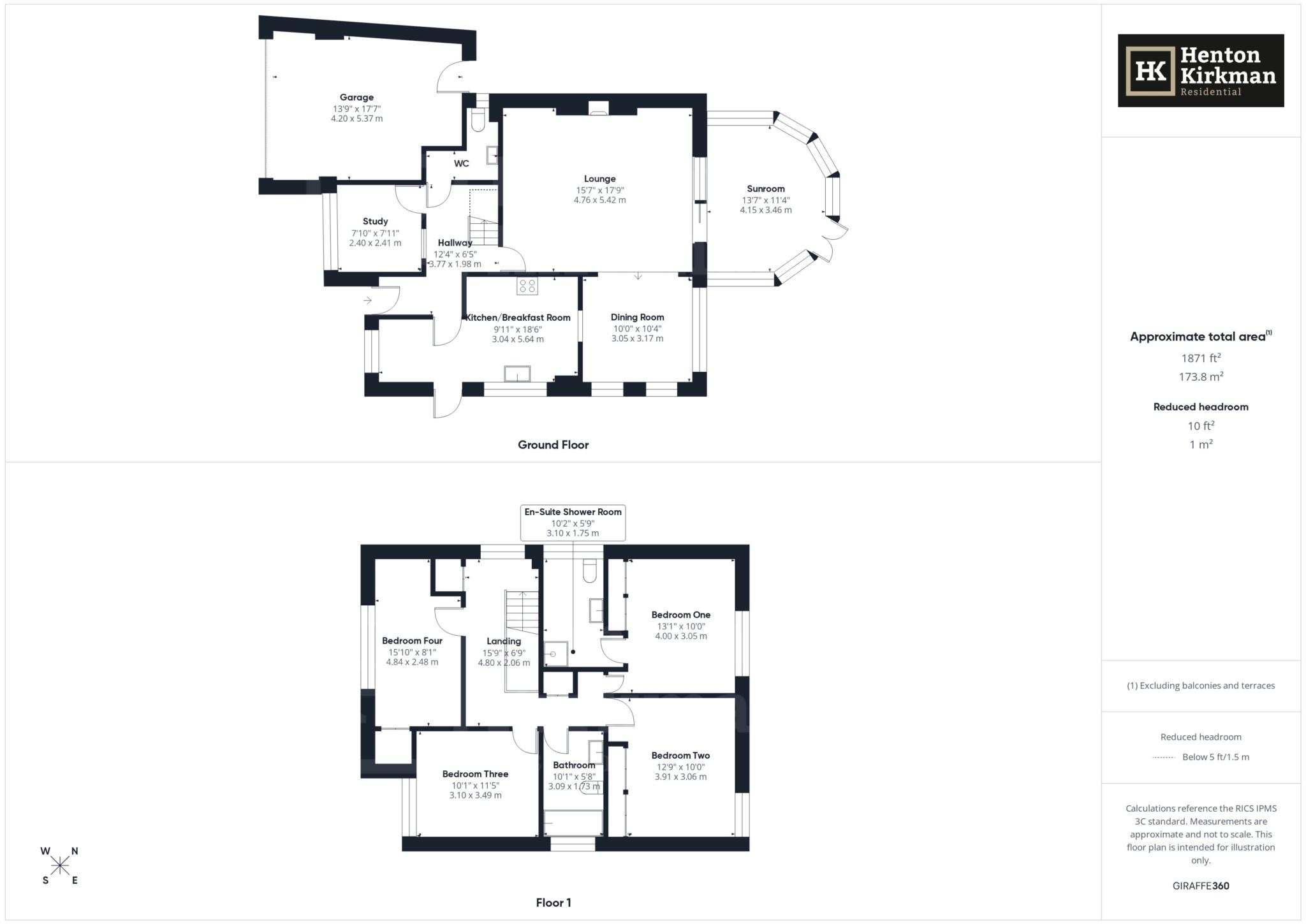
  • Substantial Family Home Offering Accommodation Near 1,900 Sq Ft
  • Four Double Bedrooms Arranged Off A Spacious Landing
  • Two First Floor Bathrooms Including An En-Suite To Bedroom One
  • Three Reception Rooms Providing Flexible Living Arrangements
  • Integral Garage With Potential For Annexe Or Conversion Use
  • Mature Rear Garden Measuring Approximately 70 Feet In Depth
  • Well Regarded Schooling All Within Close Proximity
  • No Onward Chain

Sitting within what is widely regarded as one of Billericay's most desirable residential locations, this substantial family home enjoys a prime position between Norsey Road and Stock Road. The setting is ideal for well-respected local schools, Norsey Woods and Lake Meadows, and offers a comfortable walking distance to the mainline train station.
Offered with no onward chain, the property presents an excellent opportunity for buyers seeking space, location and potential.

Providing generous accommodation approaching 1,900 sq ft, the house offers a well-balanced layout that lends itself perfectly to family living. While there are areas that would benefit from updating, a short period of redecoration and new flooring would quickly transform the property into a blank canvas, ready for personalisation and future kitchen and bathroom planning.

The ground floor features three reception rooms, a kitchen/breakfast room, conservatory and cloakroom, creating a versatile living environment. The integral garage adjoins the study and cloakroom, offering scope for conversion into an annexe or additional living space, subject to the usual consents.
Upstairs, all four bedrooms are accessed from a generous landing and are genuine doubles, with three benefitting from built-in storage. Two bathrooms serve the first floor, including an en-suite to the main bedroom.

Externally, the property enjoys a double-width driveway to the front and a larger-than-average garage. To the rear is a mature garden measuring approximately 70' in depth, mainly laid to lawn and complemented by a patio area, greenhouse and shed. Overall, this is a rare opportunity to secure a spacious home in a highly regarded location, offering both immediate comfort and exciting potential for the future.


ACCOMMODATION AS FOLLOWS...


ENTRANCE HALL

The L-shaped hallway provides a welcome sense of privacy when answering the front door, screening the main reception areas of the house.
From here, stairs rise to the first floor and doors open to each of the ground floor reception rooms and the ground floor cloakroom.


KITCHEN/BREAKFAST ROOM 5.64m x 3.04m (18'6 x 9'11)

A front and side window, along with a side access door, bring in plenty of natural light while adding everyday practicality.

The kitchen is fitted with a range of wood-style base and wall units, incorporating a stainless steel sink unit, built-in double oven and gas hob. There is also space for a washing machine and a fridge freezer.


STUDY 2.41m x 2.4m (7'11 x 7'10)

This front-facing reception room makes an ideal home office, offering a pleasant outlook and a quiet space to work.


GROUND FLOOR CLOAKROOM

Half-tiled walls and a wood floor give this room a modern feel. The white suite comprises a push-button WC and a wash basin set into a cupboard unit, providing useful storage.


LOUNGE 5.42m x 4.76m (17'9 x 15'7)

A superbly proportioned living space featuring a stone-built TV plinth with an inset gas fire.

From here, doors open into the conservatory, while a step leads up into the dining room, creating a flowing and versatile layout.


DINING ROOM 3.17m x 3.05m (10'4 x 10')

A large rear window overlooks the garden, complemented by two side windows.

These are the only wood-framed windows we have noticed in the property, although they also have double glazed sealed units.

Together, the lounge, dining room and conservatory create an impressively generous and adaptable living space, ideal for both family life and entertaining.


FIRST FLOOR LANDING

A side window brings in natural light, and the generous landing space provides a pleasant thoroughfare to the first-floor accommodation.

Doors lead to all four double bedrooms and the family bathroom, with access to the loft and an airing cupboard.

Two built-in cupboards are also located on the landing, one housing the hot water tank and the other offering excellent storage.


BEDROOM ONE 4m x 3.05m (13'1 x 10')

Positioned to the rear of the house, the main bedroom has built-in wardrobes and benefits from its own en-suite shower room.


EN-SUITE SHOWER ROOM

A good amount of space in here is currently taken up by a large fitted mirror-fronted wardrobe. The remaining area accommodates a low-level WC, wash basin and a shower cubicle.


BEDROOM TWO 3.91m x 3.06m (12'9 x 10')

The second double bedroom is also rear-facing and includes built-in wardrobes.


BEDROOM THREE 3.49m x 3'10m (11'5 x 10'1)

The first of the two front-facing bedrooms, this is a comfortable double room offering ample space for additional wardrobes.


BEDROOM FOUR 4.84m x 2.48m (15'10 x 8'1)

Another well-proportioned bedroom, this room benefits from a large built-in storage cupboard.


BATHROOM

A generously sized bathroom with part-tiled walls, currently fitted with a white three-piece suite comprising a large panel-enclosed bath with mixer taps, a low-level WC and a wash basin.


OUTSIDE


FRONT

To the front of the property is a partly enclosed, double-width driveway providing off-street parking.


GARAGE 5.37m x 4.20 (17'7 x 13'9)

Larger than usual, the garage is accessed via an electric up-and-over door. The gas boiler is fitted neatly to one corner.


REAR GARDEN

Measuring approximately 70' (21.34m) in depth, the rear garden is mainly laid to lawn.

To the far end is a patio area adjoining a raised fish pond, along with a greenhouse and shed.

Side access leads to the rear door of the garage, while a further gate provides access to the front of the property.



Council Tax
Basildon Council, Band F

Notice
Please note we have not tested any apparatus, fixtures, fittings, or services. Interested parties must undertake their own investigation into the working order of these items. All measurements are approximate and photographs provided for guidance only.


Billericay is a popular, historic market town just 30 miles from London.

The market at the top of Crown Road disappeared years ago and Billericay nowadays is more well-known as an excellent commuter town, with excellent rail links to the City (35 minutes by train), very good schools and a charming High Street, part of which is a conservation area.

It also has great access to the key main roads of the M25, A12 and A127.

The town lies on the edge of rural Essex, which makes it a very desirable place to live. This coupled with the City access goes some way to explain the high levels of Londoners we see looking to move here every year.

Since I moved here in 1973 and started as an estate agent in the mid 1990's, I have seen the town grow to where it is now, with some 14,000-15,000 homes and a population of over 40,000.

The Billericay you see today is economically and physically a thriving and attractive place to live and work. There are many open green spaces including the 40 acre Lake Meadows Park, a must in summer, and they throw a pretty impressive Fireworks Night too.

Norsey Woods is a great place for a walk or to exercise your dogs...or the kids! It dates back to the Bronze Age and covers about 165 acres with a visitor centre for the educational visits it has too.
I remember camping there as a cub scout back in the day and both Nick and myself have enjoyed many a afternoon there over the years with our families.

The High Street must be one of the prettiest in the county and dates back to Roman times. The shape we see now certainly hasn't changed much for over 500 years, our office itself is part of one of the 25 old coaching inns the town has seen over the years!

With well over 100 shops including some well known names and some boutique locally owned ones, the High Street also has some great pubs, bars and restaurants. The Chequers is probably the most popular, most people we know rate it as the best pub in town, with newer bars like Harrys Bar, Bar Zero and the Blue Boar, also very sought after, growing venues on friday and saturday nights.

There are too many great restaurants to name, suffice to say you don't need to travel out of Billericay to have a fantastic night out and there's a taxi rank by the station to get you home if you want to leave the car on the drive.

Waitrose is our local main supermarket with there also a very good Co-op over on Queens Park. Smaller supermarkets over in South Green, Sunnymede and along Stock Road also provide a super local service in their areas.

Billericay Christmas Market is a very popular annual event which sees the High Street completely shut to traffic for the day and then filled with stalls selling anything and everything Christmasy!

All the local schools, both Primary and Secondary have good OFSTED reports and there is a good choice of both State and Private. Please feel free to contact our office for more details although the OFSTED website is the ideal first port of call of course.


A BIT OF HISTORY

Billericay has an facinating history, much of which can be researched in our local museum, the Cater Museum on the High Street.

Billericay was first recorded as Byllerica in 1291 with notable events including a Peasants Revolt ending up in Norsey Woods in 1381 and some of Billericay residents, including Christopher Martin, the ship's victualler, sailing with the Pilgrim Fathers to the 'New World' of America on the Mayflower in 1620 - hence the many representartions of the Mayflower ship in numerous local businesses and the Mayflower High School.

In 1916 Billericay became famous as a result of a Zeppelin airship crashing in flames on the outskirts of the town, down what is now Greens Farm Lane.

A union workhouse was built in 1840 which later, together with additional later built buildings, became St. Andrew's Hospital in the 1930s. The regional plastic surgery and rehabilitation unit was opened here the same year I moved to Billericay, 1973. Many a local will still refer the estate there now to me, as 'one of the houses on the old Burns Unit', although it is in fact Stockfield Manor now.
Only the original workhouse building, including the chapel, and the main gatehouse, now survive, converted now into Grey Lady Place, a residential development of luxury apartments.

The railway came in 1889 and opened up opportunities for landowners to sell plots to Londoners looking to move out of 'The Smoke' into a cleaner rural environment. Both myself and Nick have sold many an old 'plot land' home over the years for redevelopment. A few still remain on the edge of Norsey Woods down Break Egg Hill.

With the housing shortage created by the war time bombing of London, pressure to build was great and the new town of Basildon was given the green light. The 'Green Belt' stopped expansion and the blurring of Basildon and Billericay, hence why lot of the Billericay housing estates were built on abandoned farmland around the town centre and Great Burstead/South Green, where permission was more easily granted.
Floor Plan
EER Chart

The Energy-Efficiency Rating is a measure of a home's overall efficiency. The higher the rating, the more energy-efficient the home is, and the lower the fuel bills are likely to be.

Utility Supply Type
Electric Mains Supply
Gas Mains Supply
Water Mains Supply
Sewerage Mains Supply
Broadband FTTC
Telephone Landline

Other Items Description
Heating Gas Central Heating
Garden/Outside Space No
Parking Yes
Garage Yes

Broadband Coverage Highest Available Download Speed Highest Available Upload Speed
Standard 13 Mbps 1 Mbps
Superfast 80 Mbps 20 Mbps
Ultrafast 1800 Mbps 220 Mbps

Mobile Coverage Indoor Voice Indoor Data Outdoor Voice Outdoor Data
EE Likely Likely Enhanced Enhanced
Three Likely Likely Enhanced Enhanced
O2 Likely Likely Enhanced Enhanced
Vodafone Likely No Signal Enhanced Enhanced

Broadband and Mobile coverage information supplied by Ofcom.


marker icon