Cherry Trees, Off Tye Common Road, Billericay

Offers Over £1,000,000 - Available


Representing the cutting edge of modern home design, this A-rated, 2,300 sq ft residence exudes contemporary elegance and promises to captivate with its finishes and thoughtfully considered style. Beyond its visual appeal, this home also delivers impressively low running costs an investment that will reward you for many years to come.

Spanning three well-planned levels, the home features high-end design touches throughout, making it ideal for both the young and the young at heart seeking quality and comfort in today's property market. Every space has been curated with attention to detail, striking a balance between luxurious living and everyday practicality.

Tucked away in a small cul-de-sac on the desirable Tye Common side of Billericay, the property enjoys a prime position just 0.7 miles from the vibrant High Street and its array of amenities and the train station beyond, while local schools are equally accessible Quilters Primary is a pleasant 0.5-mile stroll, and Billericay School lies just a little further.

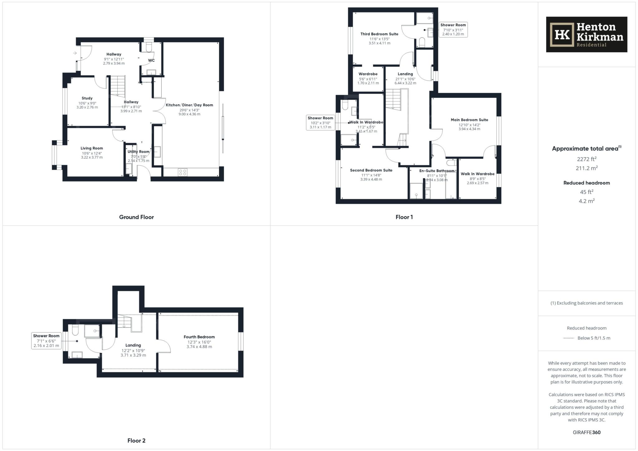
The accommodation unfolds beautifully across three floors, each designed with both function and flair in mind. All four bedrooms benefit from their own private en-suite facilities, with the principal bedroom boasting a luxurious walk-in wardrobe and a show-stopping bathroom so exceptional, in fact, it was selected by the builder as a showcase of their craftsmanship.

The ground floor offers a practical yet impressive layout, beginning with a spacious reception hall that sets the tone for the rest of the home. Two generously sized, versatile reception rooms provide flexible living options, while the stunning kitchen/diner/day room spans the full width of the house, serving as the heart of the home and an ideal space for entertaining or relaxing.

Among the many standout features are polished concrete floors, black internal doors, and air-conditioned, south-facing rooms. The property also benefits from an ultra-efficient air source heat pump, low-maintenance composite cladding, and a combination of double- and triple-glazed windows fitted with solar glass on the south-facing elevation. Comfort is further enhanced by underfloor heating throughout the ground floor and all bathrooms. Smart home enthusiasts will enjoy Wi-Fi-enabled kitchen appliances, EV charging point, super insulation, and roof-mounted solar panels complete with battery storage allowing you to harness and retain solar energy even after sunset.

Homes of this calibre are rare to the market, and we strongly encourage interested parties to arrange a viewing without delay.


ACCOMMODATION AS FOLLOWS....


HALLWAY

This L-shaped hallway is where you immediately get an inkling of the contemporary styling present throughout this home.

The polished concrete floor with underfloor heating gives a softer-than-expected feeling to the texture, and it effortlessly complements the well-chosen combination of white paintwork,natural wood and black detailing on the staircase and doors.

The depth of thought that has gone into the meticulous design process for this house ensures you have convenient storage where you need it and all the necessary facilities.

From this hallway, you have access to the lounge, the study, the ground floor WC, and the full-width kitchen/diner/day room.


GROUND FLOOR WC

Just as you would expect, this WC with a textured tiled wall features a stylish white suite, which consists of a push-button toilet and a worktop with a mounted wash basin and clear floor space underneath.

You also have a side window for natural light and ventilation.


STUDY 3.2m x 2.76m (10'6 x 9')

As you can tell from the measurements, this is a particularly generously sized study and could equally be used as a children's snug or media room.


LOUNGE 3.77m x 3.22m (12'4 x 10'6)

Giving you that cosy escape space for the evenings, this living room space is that extra area needed.


KITCHEN/DINER/DAY ROOM 9m x 4.36m max (29'6 x 14'3)

The double black doors and the polished concrete floor continue from the hall and into this full-width space, which has three defined zones and triple sliding panel doors that open directly onto the garden.

The well-planned kitchen area with a symmetrical bank of units to the facing wall features a range of stylish, contrasting painted and wood-effect cabinets with gold handles and quartz worktops, offering excellent workspace.

The island unit combines an area for stools and creates a central meeting hub where backseat cooks and family members can congregate.

Built within these units are an integrated fridge, freezer, dishwasher, electric oven, and induction hob plus there is also a sink unit with an instant boil tap.

Central to this room is the dining area, which in turn looks directly onto the garden. To one end, and with stylish wood panelling to obscure, you'll find a built-in bar area with display shelves and a drinks fridge, which ties in nicely with the media wall and a comfortable sitting area perfect for relaxing and collecting your thoughts.


FIRST FLOOR LANDING

The natural wood stairs rise to the voluminous naturally bright carpeted landing.

This spacious area provides a soft approach to where black painted doors open to each of the three first-floor bedroom suites and a matching staircase continues upward to the second floor fourth bedroom and shower room- almost a little apartment in itself!


MAIN BEDROOM SUITE

BEDROOM AREA 4.34m x 3.94m (14'2 x 12'10)

Positioned to the rear of the house, this air-conditioned main suite is a generously sized room with feature wall lighting.

It enjoys its own WALK_IN DRESSING ROOM, 2.69m x 2.57m (8'9 x 8'5) offering a combination of fitted storage options, and an en-suite bathroom.


ENSUITE BATHROOM 3.08m x 2.74m (10'1 x 8'11)

What a stunning four-piece bathroom this is so much so that the bathroom company took photos of it to use as an example of their work

Fully tiled with a combination of textured and smooth tiles, complemented by gold-effect finishes, this generous space includes a freestanding bath with wall-mounted tap fittings, a push-button WC, a wall-mounted double vanity unit with twin sinks and backing mirrors, and theres a large walk-in recessed tiled shower with a drench head and hand attachment.


SECOND BEDROOM SUITE

BEDROOM AREA 4.48m x 3.39m (14'8 x 11'1)

This front-facing double room also features its own WALK-IN DRESSING ROOM/wardrobe 3.41m x 1.67m (11'2 x 5'5) with fitted storage options and a private en-suite shower room.

ENSUITE SHOWER ROOM

Another well-fitted, stylish shower room with fully tiled walls and a shower cubicle that incorporates a wood-panelled effect wall. This balances out the black-framed shower screen and the shower unit, which includes a drench head.

The remaining suite consists of a wash basin and push-button WC. In addition, there is a front-facing window, a black towel rail, and an LED-illuminated mirror.


THIRD BEDROOM SUITE

BEDROOM AREA 4.11m x 3.51m (13'5 x 11'6)

This third suite, also front-facing, enjoys its own walk-in dressing room/wardrobe and has a private en-suite shower room.

ENSUITE SHOWER ROOM

Finished in a style that matches the second en-suite, this bathroom features a tile combination that includes a wood-effect tiled wall behind the vanity unit and within the shower cubicle, which also includes a drench head and hand attachment.

In addition, there is a push-button WC and a chrome heated towel rail.


SECOND FLOOR LANDING 3.71m x 3.29m (12'2 x 10'9)

This lovely, naturally bright landing area with a skylight window currently accommodates two reading chairs and serves as a peaceful spot to escape with a good book.

From here, doors open to the bedroom and shower room.


BEDROOM FOUR 4.88m x 3.74m (16' x 12'3)

Being on the second floor, this tucked away' bedroom is essentially on its own. The bedroom itself is another lovely space and has a rear window.


SHOWER ROOM

Another stylish space fitted in a similar style to those others, fully tiled wall and wall ensures a sleek finish that consists of a white wall mounted wc with push button wc, a wash basin with vanity unit and mixer tap plus a shower cubicle with drench head and hand attachment.

Plus you have a front window, an LED wall mirror and a heated towel rail.


OUTSIDE


FRONT

The wide frontage provides strong road presence, and a recently planted hedge will offer additional privacy.

The driveway to the side provides parking for one large and two smaller cars, while the carport includes lighting and an EV charger point.


REAR GARDEN

Enjoying a glorious southerly aspect, this well-planned and landscaped rear garden offers a patio area for entertaining, a lawn with surrounding shrub beds, and a side area with a storage shed.

To the opposite side of the house, there is a side gate along with both hot and cold water taps.





Council Tax
Basildon Council, Band G

Notice
Please note we have not tested any apparatus, fixtures, fittings, or services. Interested parties must undertake their own investigation into the working order of these items. All measurements are approximate and photographs provided for guidance only.


Billericay is a popular, historic market town just 30 miles from London.

The market at the top of Crown Road disappeared years ago and Billericay nowadays is more well-known as an excellent commuter town, with excellent rail links to the City (35 minutes by train), very good schools and a charming High Street, part of which is a conservation area.

It also has great access to the key main roads of the M25, A12 and A127.

The town lies on the edge of rural Essex, which makes it a very desirable place to live. This coupled with the City access goes some way to explain the high levels of Londoners we see looking to move here every year.

Since I moved here in 1973 and started as an estate agent in the mid 1990's, I have seen the town grow to where it is now, with some 14,000-15,000 homes and a population of over 40,000.

The Billericay you see today is economically and physically a thriving and attractive place to live and work. There are many open green spaces including the 40 acre Lake Meadows Park, a must in summer, and they throw a pretty impressive Fireworks Night too.

Norsey Woods is a great place for a walk or to exercise your dogs...or the kids! It dates back to the Bronze Age and covers about 165 acres with a visitor centre for the educational visits it has too.
I remember camping there as a cub scout back in the day and both Nick and myself have enjoyed many a afternoon there over the years with our families.

The High Street must be one of the prettiest in the county and dates back to Roman times. The shape we see now certainly hasn't changed much for over 500 years, our office itself is part of one of the 25 old coaching inns the town has seen over the years!

With well over 100 shops including some well known names and some boutique locally owned ones, the High Street also has some great pubs, bars and restaurants. The Chequers is probably the most popular, most people we know rate it as the best pub in town, with newer bars like Harrys Bar, Bar Zero and the Blue Boar, also very sought after, growing venues on friday and saturday nights.

There are too many great restaurants to name, suffice to say you don't need to travel out of Billericay to have a fantastic night out and there's a taxi rank by the station to get you home if you want to leave the car on the drive.

Waitrose is our local main supermarket with there also a very good Co-op over on Queens Park. Smaller supermarkets over in South Green, Sunnymede and along Stock Road also provide a super local service in their areas.

Billericay Christmas Market is a very popular annual event which sees the High Street completely shut to traffic for the day and then filled with stalls selling anything and everything Christmasy!

All the local schools, both Primary and Secondary have good OFSTED reports and there is a good choice of both State and Private. Please feel free to contact our office for more details although the OFSTED website is the ideal first port of call of course.


A BIT OF HISTORY

Billericay has an facinating history, much of which can be researched in our local museum, the Cater Museum on the High Street.

Billericay was first recorded as Byllerica in 1291 with notable events including a Peasants Revolt ending up in Norsey Woods in 1381 and some of Billericay residents, including Christopher Martin, the ship's victualler, sailing with the Pilgrim Fathers to the 'New World' of America on the Mayflower in 1620 - hence the many representartions of the Mayflower ship in numerous local businesses and the Mayflower High School.

In 1916 Billericay became famous as a result of a Zeppelin airship crashing in flames on the outskirts of the town, down what is now Greens Farm Lane.

A union workhouse was built in 1840 which later, together with additional later built buildings, became St. Andrew's Hospital in the 1930s. The regional plastic surgery and rehabilitation unit was opened here the same year I moved to Billericay, 1973. Many a local will still refer the estate there now to me, as 'one of the houses on the old Burns Unit', although it is in fact Stockfield Manor now.
Only the original workhouse building, including the chapel, and the main gatehouse, now survive, converted now into Grey Lady Place, a residential development of luxury apartments.

The railway came in 1889 and opened up opportunities for landowners to sell plots to Londoners looking to move out of 'The Smoke' into a cleaner rural environment. Both myself and Nick have sold many an old 'plot land' home over the years for redevelopment. A few still remain on the edge of Norsey Woods down Break Egg Hill.

With the housing shortage created by the war time bombing of London, pressure to build was great and the new town of Basildon was given the green light. The 'Green Belt' stopped expansion and the blurring of Basildon and Billericay, hence why lot of the Billericay housing estates were built on abandoned farmland around the town centre and Great Burstead/South Green, where permission was more easily granted.

/// risk.soon.flight is the what3words address for the best entrance. what3words has given every 3 metre square in the world a unique combination of 3 random words.

Floor Plan
EER Chart

The Energy-Efficiency Rating is a measure of a home's overall efficiency. The higher the rating, the more energy-efficient the home is, and the lower the fuel bills are likely to be.

Utility Supply Type
Electric Mains Supply
Gas Mains Supply
Water Mains Supply
Sewerage Mains Supply
Broadband FTTC
Telephone Landline

Other Items Description
Heating Heat Pump
Garden/Outside Space No
Parking No
Garage Yes

Broadband Coverage Highest Available Download Speed Highest Available Upload Speed
Standard Not Available Not Available
Superfast Not Available Not Available
Ultrafast Not Available Not Available

Mobile Coverage Indoor Voice Indoor Data Outdoor Voice Outdoor Data
EE Enhanced Enhanced Enhanced Enhanced
Three No Signal No Signal Enhanced Enhanced
O2 Enhanced Enhanced Enhanced Enhanced
Vodafone Enhanced Enhanced Enhanced Enhanced

Broadband and Mobile coverage information supplied by Ofcom.


marker icon