Jersey Gardens, Wickford

Price £1,975 pcm - Available Now - Unfurnished


  • Available For Immediate Occupation
  • Moments From The High Street & Even Closer To The Station
  • Four Bedrooms Across Three Floors Three Of Which Are Doubles
  • Two En-Suite Shower rooms Plus A Separate Family Bathroom
  • Lounge With Double Doors Opening Directly Onto The Garden
  • Kitchen Diner With Integrated Appliances
  • Cat 6 Cabling Throughout
  • Sunny Rear Garden With Shed & Side Access
  • Two Allocated Parking Spaces To The Front Of The Property
  • Pressurised Water System & Double-Glazed Windows Throughout

Situated just moments from the High Street and even closer to the mainline station, the location of this four-bedroom house alone will make everyday life considerably easier and the property itself more than lives up to its surroundings.

Stylishly presented throughout, the accommodation is arranged across three floors. On the upper two floors you will find four bedrooms, three of which are doubles, and two en-suite shower rooms and a family bathroom. A really impressive offering for a house of this type.

On the ground floor, wood-style flooring ensures practicality throughout, and here you have a ground floor WC, a kitchen diner with integrated appliances and a lounge with double doors opening directly onto the garden.

Tucked under the stairs is a handy cupboard housing the communication points for the Cat 6 cabling that runs throughout the home, ensuring you are hard-wired and ready to stream, work or game at full speed, a modern essential that is so often overlooked in properties of this age.

The rear garden is a well-tended space with a favourable sunny aspect, a garden shed and side access leading through to two parking spaces at the front. Further points of note include a pressurised water system, double-glazed windows throughout and perhaps most appealingly for many, the property is available for immediate occupation.


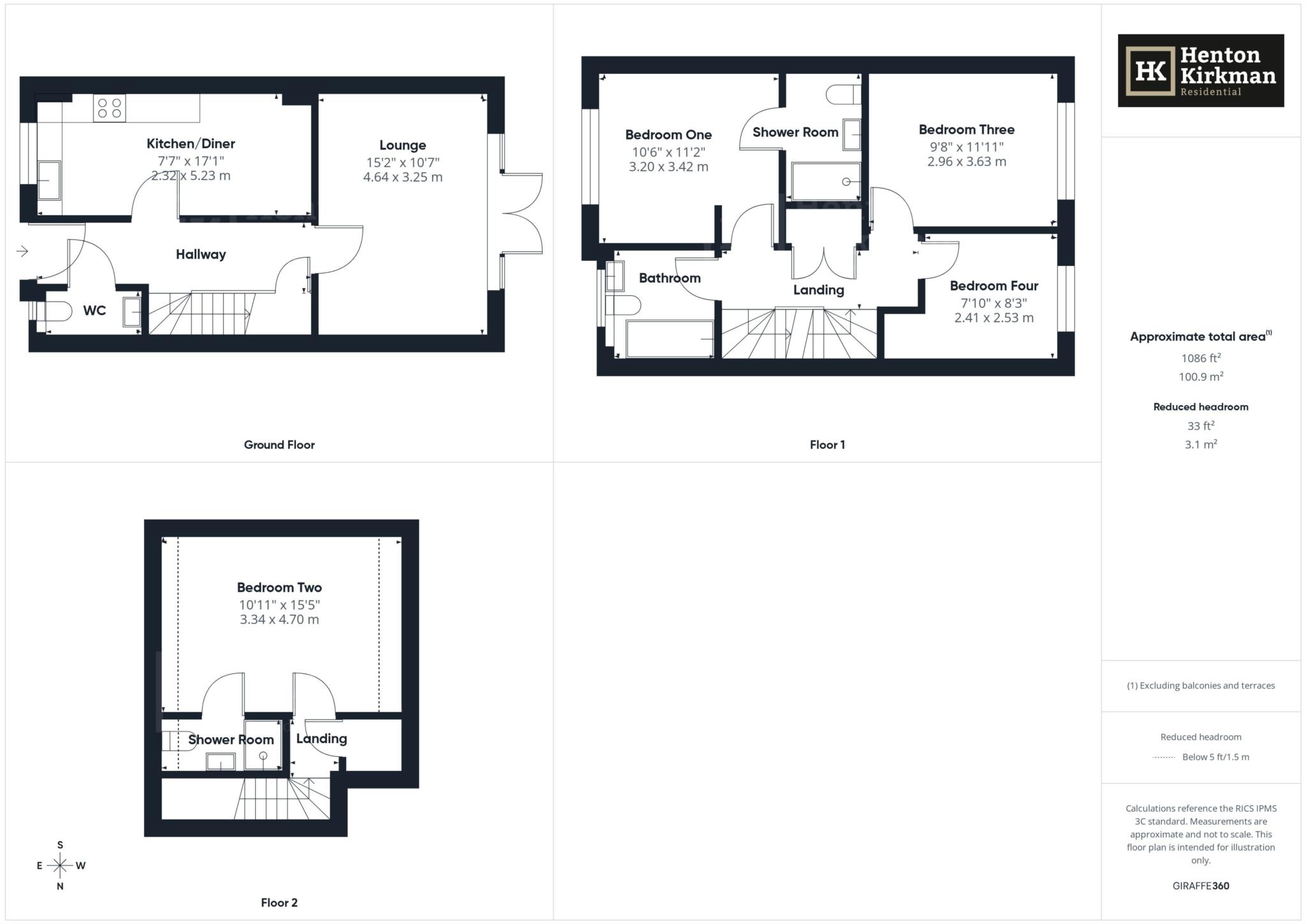
ACCOMMODATION AS FOLLOWS


ENTRANCE HALLWAY

GROUND FLOOR WC

KITCHEN DINER 5.23m x 2.32m (17'1 x 7'7)

LOUNGE 4.64m x 3.25m (15'2 x 10'7)

BEDROOM ONE 3.42m x 3.20m (11'2 x 10'6)

EN-SUITE SHOWER ROOM

BEDROOM TWO (Second Floor) 4.70m x 3.34m (15'5 x 10'11)

EN-SUITE SHOWER ROOM

BEDROOM THREE 3.63m x 2.96m (11'11 x 9'8)

BEDROOM FOUR 2.53m plus recess x 2.41m (8'3 plus recess x 7'10)

FAMILY BATHROOM

REAR GARDEN

TWO PARKING SPACES



Deposit: £2,278.00

Minimum Tenancy : 12 months

Council Tax
Basildon Council, Band D

Notice
All photographs are provided for guidance only.

Wickford is a small commuter town with a direct line to London Liverpool Street.

The town boasts a main High Street with a range of retail shops, restaurants, pubs and cafés, plus there is a market on Saturdays.

It is also home to Wick country Park, which has 2 km of easy access trials and a 5 acre lake.
The following are permitted payments which we may request from you:

a) The rent
b) A refundable tenancy deposit (reserved for any damages or defaults on the part of the tenant) capped at no more than five weeks' rent where the annual rent is less than £50,000, or six weeks' rent where the total annual rent is £50,000 or above
c) A refundable holding deposit (to reserve a property) capped at no more than one week's rent
d) Payments to change the tenancy when requested by the tenant, capped at £50, or reasonable costs incurred if higher
e) Payments associated with early termination of the tenancy, when requested by the tenant
f) Payments in respect of utilities, communication services, TV licence and council tax; and
g) A default fee for late payment of rent and replacement of a lost key/security device, where required under a tenancy agreement

Please call us if you wish to discuss this further.
Floor Plan
EER Chart

The Energy-Efficiency Rating is a measure of a home's overall efficiency. The higher the rating, the more energy-efficient the home is, and the lower the fuel bills are likely to be.

Utility Supply Type
Electric Mains Supply
Gas Mains Supply
Water Mains Supply
Sewerage Mains Supply
Broadband FTTC
Telephone Landline

Other Items Description
Heating Not Specified
Garden/Outside Space No
Parking No
Garage No

Broadband Coverage Highest Available Download Speed Highest Available Upload Speed
Standard Unknown Unknown
Superfast Unknown Unknown
Ultrafast Unknown Unknown

Mobile Coverage Indoor Voice Indoor Data Outdoor Voice Outdoor Data
EE Unknown Unknown Unknown Unknown
Three Unknown Unknown Unknown Unknown
O2 Unknown Unknown Unknown Unknown
Vodafone Unknown Unknown Unknown Unknown

Broadband and Mobile coverage information supplied by Ofcom.


marker icon